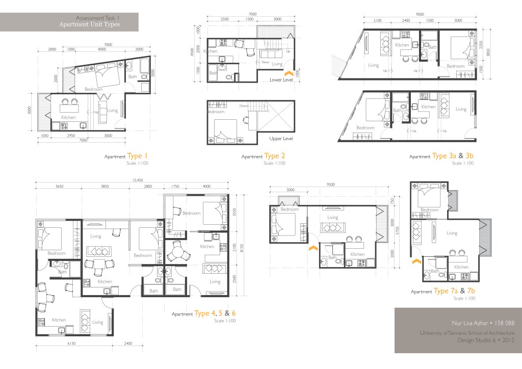
Set in Hobart, Tasmania, this mixed-use project began with exercises in exploring various apartment layout designs. The project was built up from there as units were tried and tested in different combinations, before additional uses were introduced to the site.
The resulting intervention includes residential units, performance spaces, agoras, and an art gallery.





